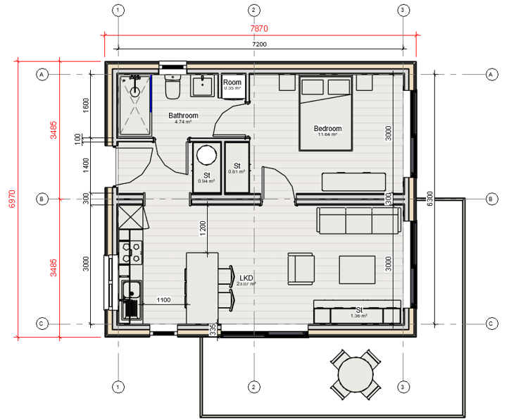
The F45 Compact Living SOLO (45sqM Home) brings together efficient design, high-quality finishes and genuine residential functionality in one compact footprint. Designed for Irish conditions and built using Framespace’s certified construction system, it offers a smart housing solution for family accommodation, rental use or independent living.
The Compact Family Home has been carefully designed to deliver everything needed for comfortable day-to-day living within a 45sqm layout. The single bedroom , an open-plan central living space, a full bathroom and integrated utility space are arranged to make the home feel bright, practical and surprisingly spacious.
Unlike many small-format structures on the market, this is not conceived as a temporary pod or occasional-use building. It is designed as a proper home — one that supports family life, independent living and long-term residential use. The bedroom sizes makes the unit compliant to all bulding regulations include bedroom size.
Open-plan living
Kitchen, dining and lounge space combine to form the social heart of the home.
Integrated utility
Laundry and storage are built into the plan, helping the home function as a full-time residence.
Outdoor connection
Access to a deck or terrace extends the living area and enhances the sense of space.
Bedroom size compliant with minimum bedroom size under buder Building regulations
For added space the home can have an extended porch still within planning regulations
Planning changes may create new opportunities for compact housing, but compliance still matters. Framespace delivers homes using a certified construction system designed to meet Irish regulations and quality expectations.
NSAI-certified system
Independent assurance of quality and compliance.
Designed for Irish regulations
Built for residential use, not temporary occupancy.
Precision manufacturing
Factory-controlled production for consistency and performance.
Future-ready investment
A safer, more durable and more credible long-term housing solution.

We can help you deliver the best solution for your customers. If you'd like to know more about what we can offer, get in touch.
Contact us today