The F45 Duo is ideal for a range of uses including family accommodation, downsizing, rental opportunities and independent living. The layout supports privacy in the bedroom zones while keeping the main living space open, bright and sociable.
This makes it especially suitable for homeowners looking to create additional accommodation on an existing site without compromising on quality or comfort.
The range comes in different finishs to suit customer preferences
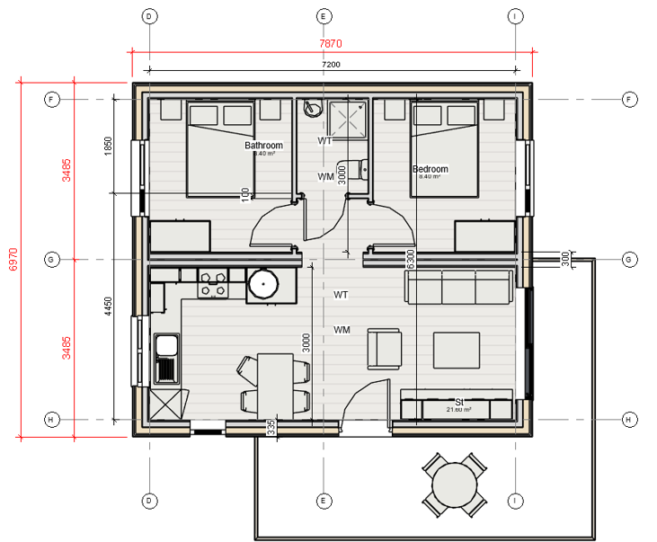
F45 Duo plan
The F45 Duo is ideal for a range of uses including family accommodation, downsizing, rental opportunities and independent living. The layout supports privacy in the bedroom zones while keeping the main living space open, bright and sociable.
This makes it especially suitable for homeowners looking to create additional accommodation on an existing site without compromising on quality or comfort.
Two bedrooms
A practical two-bedroom arrangement suitable for family members, guests or shared occupancy.
Open-plan living
Kitchen, dining and lounge space combine to form the social heart of the home.
Integrated utility
Laundry and storage are built into the plan, helping the home function as a full-time residence.
Outdoor connection
Access to a deck or terrace extends the living area and enhances the sense of space.
For added space the home can have an extended porch still within planning regulations
Residential 45m2 + deck Cedar
Planning changes may create new opportunities for compact housing, but compliance still matters. Framespace delivers homes using a certified construction system designed to meet Irish regulations and quality expectations.
NSAI-certified system
Independent assurance of quality and compliance.
Designed for Irish regulations
Built for residential use, not temporary occupancy.
Precision manufacturing
Factory-controlled production for consistency and performance.
Future-ready investment
A safer, more durable and more credible long-term housing solution.

We can help you deliver the best solution for your customers. If you'd like to know more about what we can offer, get in touch.
Contact us today